办公系统
首页
乐动(中国)
集团简介
组织机构
集团董监高
核心理念
发展历程
资质荣誉
新闻动态
集团动态
子公司动态
通知公告
行业资讯
社会责任
视频专区
党的建设
党建动态
团青工作
团青之声
青年大学习
“阅”享青春
青年力量
纪检监察
专题专栏
第二次党代会
喜迎党代会 聚力新征程
聚焦党代会 擘画新蓝图
宣贯党代会 奋进新实践
业务领域
规划咨询
建筑勘察设计
水利水电勘测设计
工程监理
招标代理
工程检测
项目展示
子公司
投资者关系
投资者关系
投资者互动
企业文化
集团文化
文化活动
员工风采
人力资源
人才理念
人才队伍
人才招聘
联系我们
项目展示
您当前的位置:
首页
>
项目展示
>
项目展示
项目展示
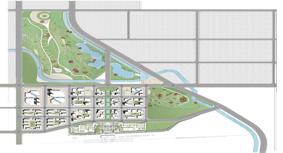
白银市高铁片区控制性详细规划及城市设计
日期: 2021年10月28日
|
来源:
|
字号:【
大
中
小
】
姓名
性别
出生年月
手机号
学历
请选择学历
高中/中专
大学专科
大学本科
硕士
博士
博士后
其他
毕业院校
希望月薪
请选择希望月薪
1000元以下
1000-2000
2000-3000
3000-5000
5000-8000
8000-12000
12000-20000
20000以上
面议
教育经历
工作经历
验证码
立即提交
安博官方网站
|
MK国际
|
乐动网站
|
LEDONG.COM
|
米兰官方网站
|
MK官网
|
乐动网页版登录入口_乐动(中国)
|
安博官方网页版
|
米兰平台
|